!RESERVIERT! Uferpalais: Stilvolles Penthouse in Traumlage

Wohnbereich Visu
UFERPALAIS_Aussen
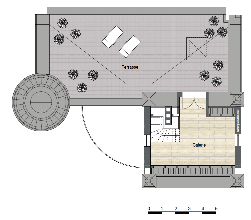
Dachterasse Uferpalais

!RESERVIERT! Uferpalais: Stilvolles Penthouse in Traumlage

Das UFERPALAIS -ein architektonisches Juwel mit Geschichte-

entstand 2010 in der stilvoll revitalisierten Tuchmanufaktur Scheidt im begehrten Essen-Kettwig. In enger Zusammenarbeit mit der Denkmalschutzbehörde wurden hier 38 exklusive Eigentumswohnungen mit Wohnflächen von ca. 60 bis 256 m² realisiert, die historischen Charme mit modernstem Wohnkomfort vereinen.

Die hier angebotene, lichtdurchflutete Penthouse-Wohnung des Turbinenhauses verfügt über eine Wohnfläche von 190 m² und nimmt innerhalb dieses Ensembles eine herausragende Sonderstellung ein. Neben ihrer exklusiven Ausstattung begeistert sie mit einer großzügigen Dachterrasse und einem unvergleichlichen Blick über Ruhr, Mühlenteich und Natur – ein echtes Highlight für Ästheten und Individualisten. Sie vereint industrielle Historie mit zeitgemäßem Luxus; hochwertige Materialien, ein moderner Grundriss und ein unverwechselbares Raumgefühl zeichnen diese Immobilie aus.

– 360-Grad-Rundumblick durch großflächige Fensterflächen – Tageslicht und Natur werden hier Teil des Wohnens.

– Kamin im offenen Wohnbereich für gemütliche Abende mit Blick ins Feuer und aufs Wasser.

– 57 qm große Dachterrasse mit Panoramablick – Ihr privates Refugium über den Dächern Kettwigs.

– Massivholzparkett in den Wohnräumen für ein natürliches, behagliches Ambiente.

– Exklusive Bäder mit stilvollen Fliesen, hochwertigen Waschtischen, Markenarmaturen, Echtglas-Duschabtrennungen und separatem Gäste-WC.

– Elektrisch öffnende Oberlichter in Bädern und Flur sorgen für zusätzlichen, natürlichen Lichteinfall.

– Fußbodenheizung in sämtlichen Räumen für behagliche Wärme zu jeder Jahreszeit.

– Design-Küche mit hochwertigen Geräten, offen zum Ess- und Wohnbereich – ideal für gesellige Abende und stilvolle Dinner mit Familie & Freunden.

Das Uferpalais befindet sich in erstklassiger Lage an der Ruhrpromenade im begehrten Stadtteil Essen-Kettwig. Die historische Altstadt von Kettwig mit Restaurants, Cafés und Boutiquen ist fußläufig erreichbar. Die direkte Südwestausrichtung zur Ruhr und dem angrenzenden Weiher bietet einen unverbaubaren und malerischen Ausblick – selten und absolut begehrt.

Auch die infrastrukturelle Anbindung überzeugt! Die Autobahn A52, über die man in weniger als 20 Minuten zur Innenstadt von Essen und zum Düsseldorfer Flughafen gelangt, ist schnell erreicht. Wer das Auto stehen lassen möchte, kann sich für die S-Bahn-Verbindungen nach Essen oder Düsseldorf entscheiden, die vom UFERPALAIS fußläufig erreichbar sind.

Diese Lage vereint Natur, Ruhe und urbane Nähe – perfekt für alle, die das Besondere suchen.

Für weitere Informationen stehen wir Ihnen gerne zur Verfügung.

 

Exposé Uferpalais Penthouse

IHR ANSPRECHPARTNER

Heiner Hoffstedde

Fon: 0203 / 3177 3277
Mobil: 0172 / 8744294

heiner.hoffstedde(at)maletz-hoffstedde.de